バランス


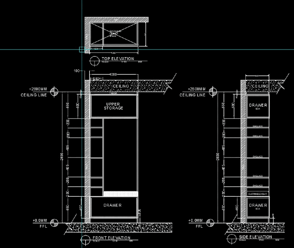
The photo depicts a detailed architectural blueprint of a vintage-style single-family home featuring a mix of steel frame and wood materials. The floor plan showcases a multi-level shelving unit integrated into the wall, consisting of upper storage spaces and a series of drawers, meticulously measured and labeled for precision. The design emphasizes practical storage solutions, with the steel frame providing sturdy support and the wood materials contributing to the home's warm, rustic charm. The drawings include the front, side, and top elevations, each meticulously detailed to illustrate the dimensions and architectural elements, providing a clear, comprehensive view of the structure. The attention to detail suggests a thoughtful blend of traditional materials and modern construction techniques, capturing the essence of a timeless design built to last.