ReRender

一戸建て,
スリーク・インターナショナル
元画像
Source Image
アップロード:
生成画像(768x976)
source
3.43%
Result Images
Result Images
Result Images

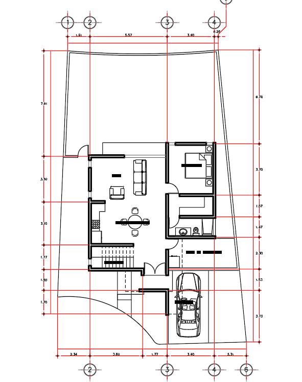
An incredibly lifelike, richly detailed, photorealistic aerial shot of a sleek, modern single-family home's main floor plan, presented as if captured by a drone on a bright, clear day. The scene is illuminated by diffused, overhead daylight, creating a neutral and precise atmosphere perfect for architectural study. Captured with a perfectly calibrated, high-resolution imaging system, emphasizing crisp lines and clear spatial relationships. The layout reveals a thoughtfully designed interior with distinct zones: a spacious living area with a sectional sofa and accent chairs arranged for conversation, a dining area featuring a round table and multiple chairs, and a more private section containing a bedroom with a neatly made bed and a compact bathroom. Adjacent to these living spaces, a functional kitchen area is suggested with implied appliances and cabinetry. A significant portion of the lower right is dedicated to an attached garage, housing a sleek, modern car, hinting at the vehicle's presence through subtle shading and form. The exterior walls are clean and angular, with the overall footprint being somewhat irregular, suggesting a contemporary, potentially custom-built structure. Thin, precise red lines overlay the scene, acting as architectural guides and dimensions, which, in this photographic interpretation, appear as subtle, laser-like projections, adding to the high-tech, meticulous feel without detracting from the realism of the depicted interiors and exterior shape. The surrounding off-white background gives a sense of an open, uncluttered space, allowing the architecture to be the sole focus.


Use the extensionSketchUp
Follow usInstagramYouTubeLinkedIn
Join the discussionReddit