バランス


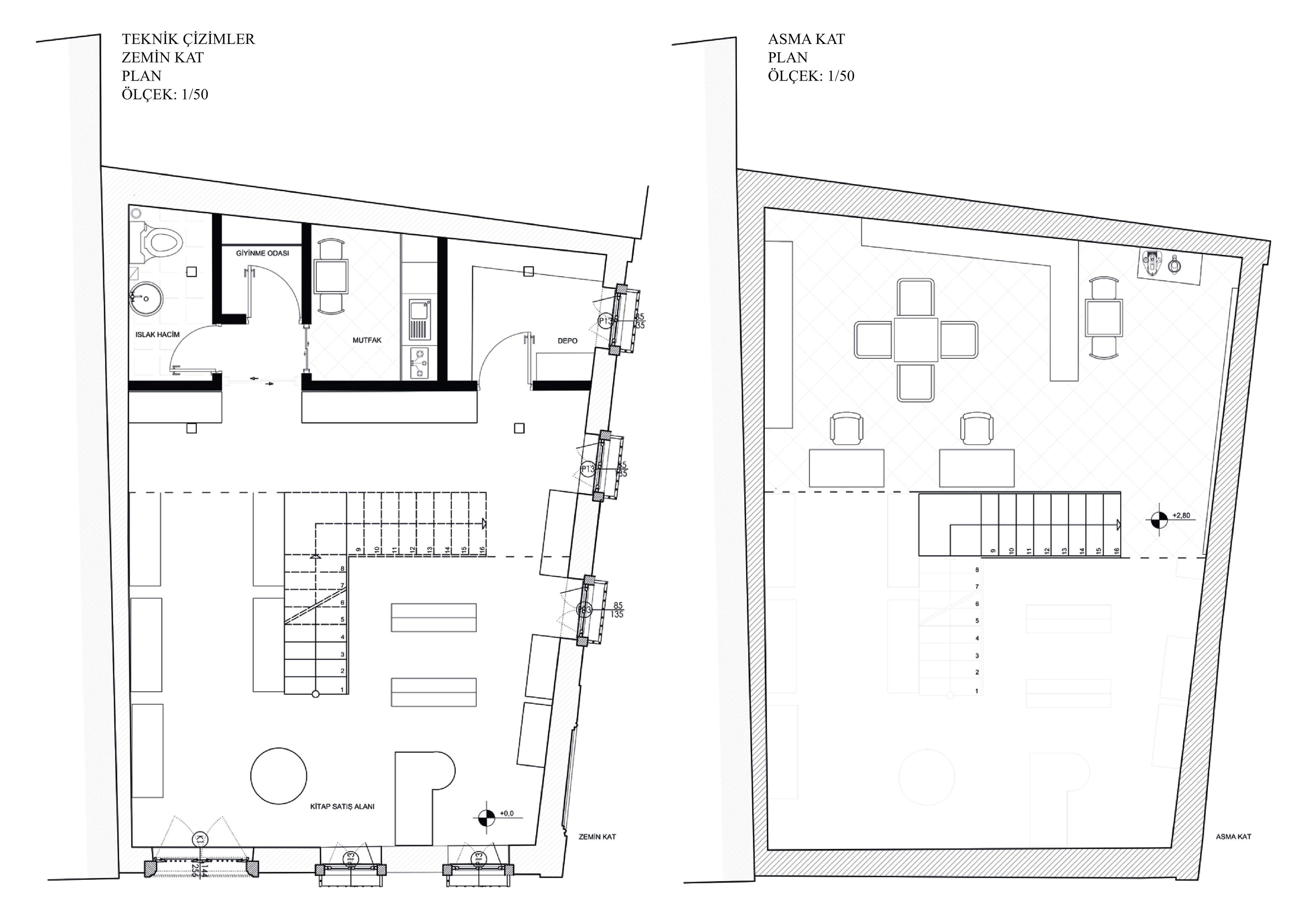
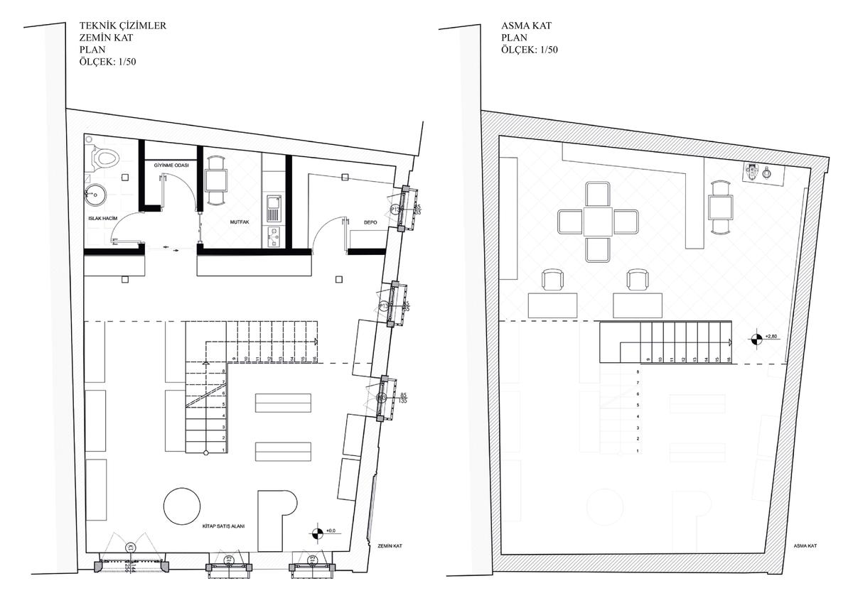
An incredibly lifelike, richly detailed, photorealistic floorplan photo of a two-level coastal Scandinavian home interior, captured during midday in a serene winter setting with a hint of snow visible outside the angular windows. The scene is illuminated by bright, diffused natural light, casting soft shadows and creating a calm, minimalist atmosphere. Captured with a wide-angle lens, emphasizing the clean lines and functional layout, the image showcases the polished concrete floors with subtle wood accents on the stairs and furniture. On the ground floor, to the left, a compact wet room with a toilet and sink is adjacent to a small kitchenette and what appears to be a changing room. The main area of this floor is a retail space, suggested by stacked rectangular display shelves and a circular information desk, with a central staircase leading to the upper level. The upper level, revealed on the right, is a more open-plan space, likely a living or studio area, featuring a modern desk setup with chairs, and a central seating arrangement with a table and four chairs, all rendered in light wood and white tones. The architectural style is distinctly modern and minimalist, with uncluttered spaces and a focus on natural materials, evoking a sense of peaceful, organized living typical of Scandinavian design, even though the exterior hint of a snowy, coastal environment suggests a slightly harsher climate outside.