ReRender

一戸建て,
ドラマティック・デコンストラクティビスト
元画像
Source Image
アップロード:
生成画像(1416x768)
source
1.24%
Result Images
Result Images
Result Images
もっと見る

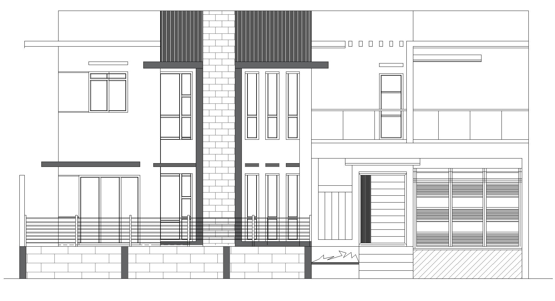
An incredibly lifelike, richly detailed, photorealistic architectural photograph of a modern, multi-story single-family home, with a dramatic deconstructivist flair, set against a neutral urban backdrop. The scene is illuminated by soft, diffused daylight, creating a clean and crisp atmosphere that accentuates precise architectural lines and material contrasts. Captured with a wide-angle lens, emphasizing the building's striking asymmetry, varied window placements, and the interplay of solid masses and transparent voids. The composition highlights a series of distinct volumes, each rendered with a modern contemporary aesthetic. The main structure features clean, sharp edges and a dynamic arrangement of horizontal and vertical elements. The ground floor is divided into distinct functional zones: to the left, a dining area is subtly suggested by large glass sliding doors opening onto a balcony, protected by a sleek metal railing. The central section boasts a double-height, high-ceilinged living area, marked by a prominent brick facade and large vertical windows, contributing to a sense of grandeur. To the right of this, a welcoming entrance provides a prominent, yet understated, entry point, characterized by a covered porch and ribbed siding. The far right section of the ground floor is dedicated to a garage, with its entrance distinguished by horizontal louvers. Upper levels feature balconies, diverse window styles including casement and ribbon windows, and textured vertical cladding, all contributing to a captivating dialogue between form and function, resulting in a striking and individualistic facade.


Use the extensionSketchUp
Follow usInstagramYouTubeLinkedIn
Join the discussionReddit