ReRender

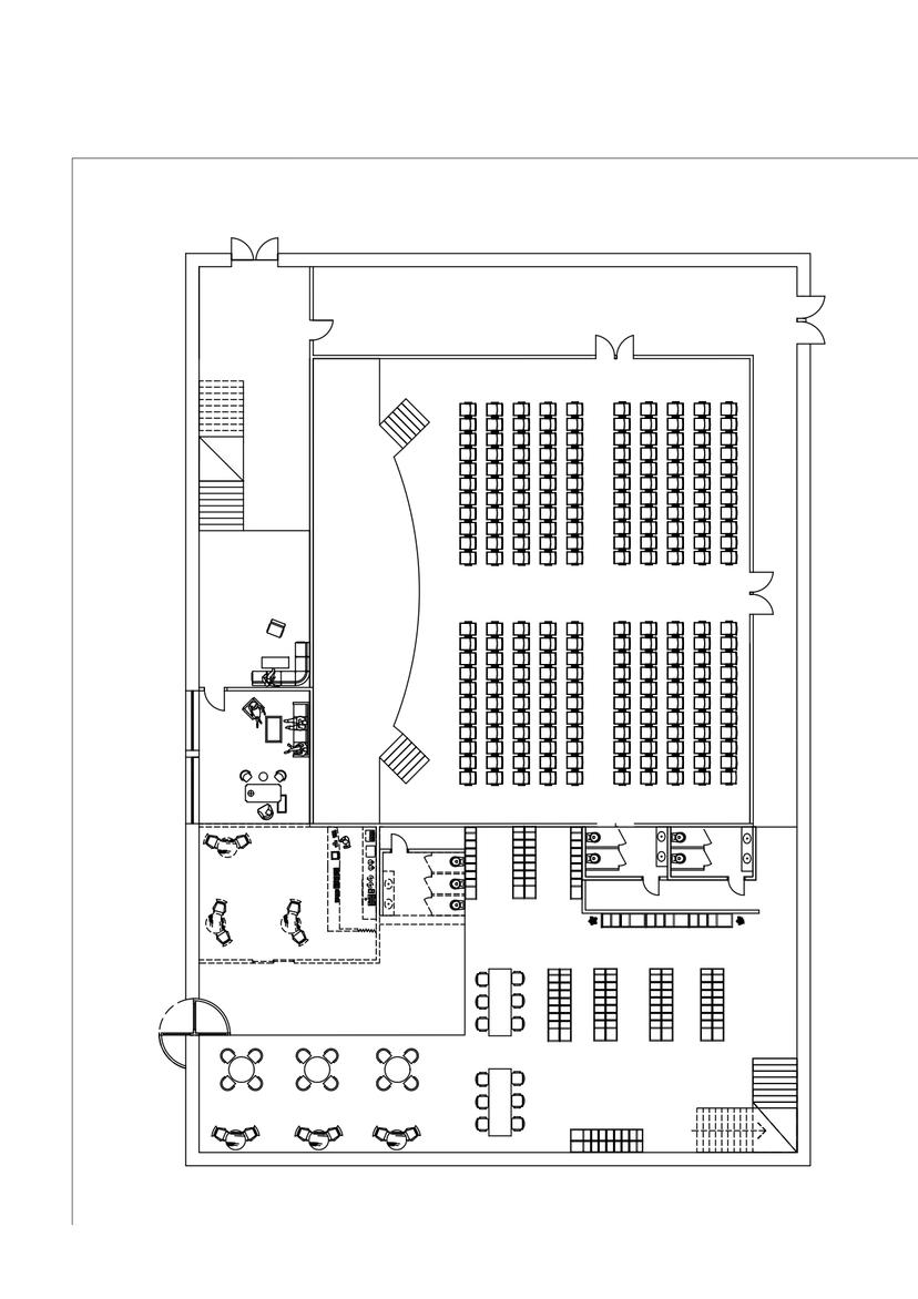
図書館,
バイオモーフィック
元画像
Source Image
アップロード:
生成画像(768x1088)
source
2.69%
Result Images
Result Images
Result Images

An incredibly lifelike, richly detailed, photorealistic floorplan photo of a modern library, captured at midday under bright, even lighting that showcases the clean lines and expansive layout. The scene is illuminated by natural light streaming from unseen windows, creating a bright and inviting atmosphere. Captured from a high aerial perspective, the photograph emphasizes the functional and biomorphic design of the space, highlighting the organic curves of the main seating area that contrast with the rigid symmetry of the rows of desks and chairs. The floorplan reveals distinct zones: a central lecture or presentation area with tiered seating, smaller breakout spaces with round tables, and a more traditional study area with individual desks and shelving units. Details like doorways, staircases, and subtle furniture placements are rendered with precision, giving a tangible sense of depth and scale. The polished floor reflects the overhead lighting, adding a subtle sheen to the polished surfaces, further enhancing the sense of a well-maintained and contemporary public space.


Use the extensionSketchUp
Follow usInstagramYouTubeLinkedIn
Join the discussionReddit