バランス


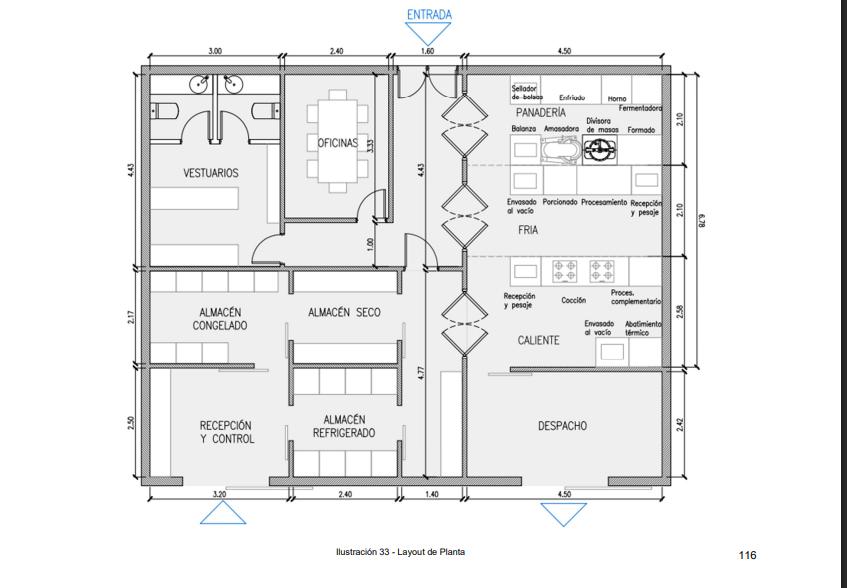
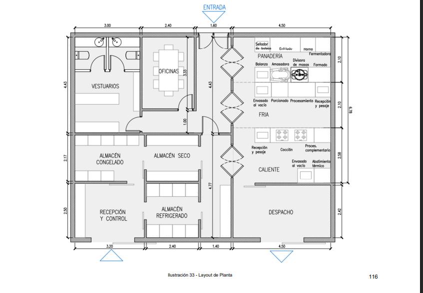
An incredibly lifelike, richly detailed, photorealistic floorplan photo of a modern food distribution and production center on a tropical island. The scene is illuminated by bright midday summer sun, creating a clear and technologically efficient atmosphere. Captured with a wide-angle lens, emphasizing the sleek international design and the functional layout of this medium-scale industrial logistics nave. Concrete, steel, and insulated panels form the contemporary architecture, with clear circulation paths for refrigerated trucks and an organized internal flow of operations. The photo showcases distinct areas: merchandise reception with loading docks, multi-temperature storage (dry, refrigerated, and frozen) including walk-in cold rooms, food production lines (cold, hot, and bakery), packaging, and dispatch zones. In the background, hints of a coastal environment with tropical vegetation and a nearby dock suggest the building's strategic location. The overall aesthetic is clean, technological, and efficient, befitting a large-scale food production and logistics operation.