ReRender

一戸建て,
プレイフル・ポストモダン
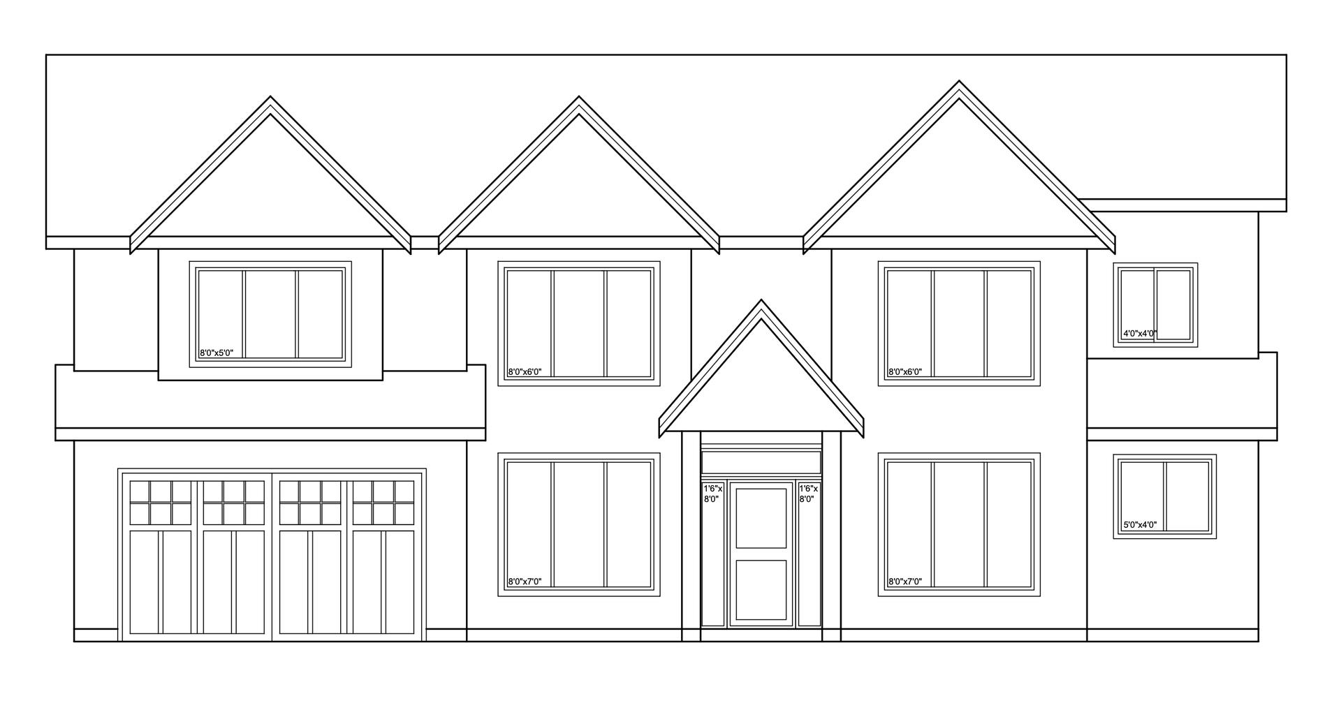
元画像
Source Image
アップロード:
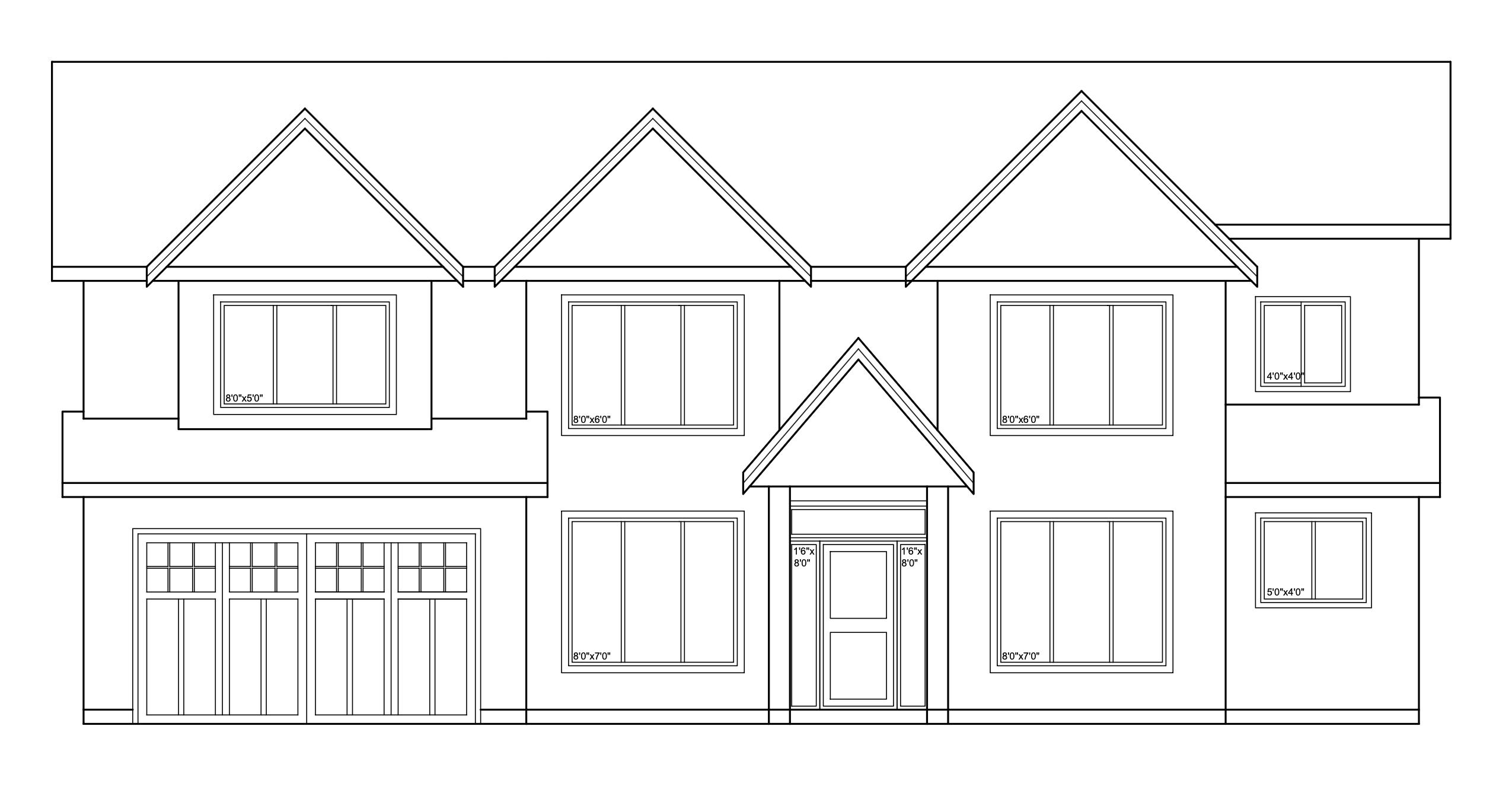
生成画像(1440x768)
source
0.86%
Result Images
Result Images
Result Images

An incredibly lifelike, richly detailed, photorealistic front elevation photograph of a modern West Coast luxury home, rendered with the clean, timeless aesthetic often seen in Langley and Surrey, British Columbia. The scene is illuminated by soft, overcast daylight, evoking the diffused, atmospheric conditions typical of the Vancouver lower mainland, which creates gently defined shadow lines across the structure and a subtly shadowed, recessed front entry. Captured with a perfectly straight-on, eye-level camera shot that gives an almost orthographic feel, the meticulously detailed facade features smooth, light warm-white stucco, complemented by natural cedar wood soffits and elegant vertical feature panels in a warm tone. Black aluminum window frames, precisely placed and sized as per the architectural drawings, create sharp contrasts against the stucco, with ultra-realistic glass reflections hinting at the overcast sky. A stone veneer base grounds the home, while subtle standing seam metal roof accents add a touch of modern refinement. The high-end modern front door, nestled within the shadowed entry, is flanked by modern black wall sconces, and a subtle warmth emanates from recessed soffit lighting. Crisp trims define the architectural elements, enhancing the realism and depth. The minimal, clean front yard features ornamental grasses and small shrubs, with an exposed aggregate concrete driveway and walkway leading to the imposing yet elegant structure, all rendered in ultra-photorealistic 4K quality with sharp focus and physically accurate materials.


Use the extensionSketchUp
Follow usInstagramYouTubeLinkedIn
Join the discussionReddit