ReRender

一戸建て,
エコ・フューチャリズム
元画像
Source Image
アップロード:
生成画像(768x1056)
source
3.14%
Result Images
Result Images
Result Images

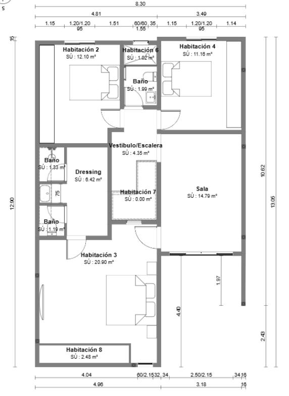
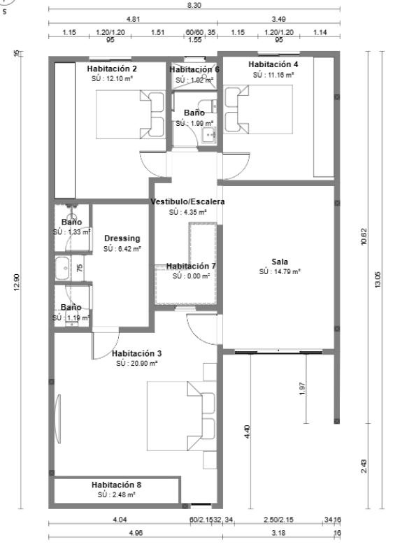
An incredibly lifelike, richly detailed, photorealistic floorplan photograph of a single-family home with an eco-futurist design. The scene is illuminated by the warm, soft glow of a sunset, casting long shadows and bathing the interior in a serene, spring light. The walls are rendered in a textured, matte gypsum finish, hinting at sustainable building materials, while the overall layout suggests a modern, forward-thinking dwelling nestled within a peaceful countryside setting. The clarity of the image focuses on the intricate layout of various rooms, including multiple "habitaciones" (bedrooms), bathrooms, a dressing area, a vestibule/staircase, and a main "sala" (living room), all meticulously detailed with clean lines and a minimalist aesthetic. Photographed with a wide-angle lens at a slightly elevated perspective, the composition draws the viewer's eye through the thoughtfully conceived spaces, emphasizing the seamless integration of form and function within this imagined eco-futurist abode.


Use the extensionSketchUp
Follow usInstagramYouTubeLinkedIn
Join the discussionReddit